création d'une cuisine en extension sur 4 poteaux
Modérateur : davidoffo
création d'une cuisine en extension sur 4 poteaux
Bonjour,
Je suis en étude, le projet est mûr car j'ai déposé la demande permis de construire. Budget 6000,00 €, prévision.
Tout est fait par moi, sauf fourniture charpente (fermettes) et plancher hourdis. Cette cuisine fera 13,00 m2, celle qui se trouve à l'étage a été amputée de 30 cm pour agrandir la salle de bain.
J'ai pondu un plan ferraillage pour les semelles, poteaux et poutres en élévation. J'ai trouvé le moyen de couder des dia 14 avec deux IPN, cela fonctionne impec.
1 seule fenêtre à l'Est: façons d'avoir 2 pans de murs libres, et avoir le soleil pour le café
Voici quelques plans
Je suis en étude, le projet est mûr car j'ai déposé la demande permis de construire. Budget 6000,00 €, prévision.
Tout est fait par moi, sauf fourniture charpente (fermettes) et plancher hourdis. Cette cuisine fera 13,00 m2, celle qui se trouve à l'étage a été amputée de 30 cm pour agrandir la salle de bain.
J'ai pondu un plan ferraillage pour les semelles, poteaux et poutres en élévation. J'ai trouvé le moyen de couder des dia 14 avec deux IPN, cela fonctionne impec.
1 seule fenêtre à l'Est: façons d'avoir 2 pans de murs libres, et avoir le soleil pour le café
Voici quelques plans
Amateur aimant le bois 
Re: création d'une cuisine en extension sur 4 poteaux
Voici 2 vues environnementales qui situe bien le projet
Amateur aimant le bois 
Re: création d'une cuisine en extension sur 4 poteaux
Pour ceux qui si connaisse je joins mes plans armature, pondu à la louche et suivant mon expérience chantier, dessiné à la main. Echelle 1/75 pour ce format A4
Amateur aimant le bois 
Re: création d'une cuisine en extension sur 4 poteaux
Après avoir bien dégrossi mon étude ferraillage, j'ai préparé l'atelier façonnage des barres, cadres, épingles et étriers. Je peux couder des barres de dia 14.
Pour le façonnage des cadres et cie Pour cintrer l'acier de dia 14, il faut mettre la barre verticale et ensuite abaisser celle-ci
Pour le façonnage des cadres et cie Pour cintrer l'acier de dia 14, il faut mettre la barre verticale et ensuite abaisser celle-ci
Amateur aimant le bois 
Re: création d'une cuisine en extension sur 4 poteaux
Voici le plan dessiné pour la poutre au dessus des poteaux pour le cas le plus défavorable soit 2 000 kg au ml. Après calcul avec formules bael 91
- Pièces jointes
-
- poutre extension.pdf
- (92.48 Kio) Téléchargé 501 fois
Amateur aimant le bois 
Re: création d'une cuisine en extension sur 4 poteaux
Je reviens aujourd'hui pour compléter le dossier: Ce sera le dossier charpente
Après avoir fourni le plan de base, la pente 29.75°, les débords de 22 cm le fournisseur m'a fait une 1 étude Après avoir comparé et étudié cette étude je lui ai fait une proposition d'un modèle après relevé sur l'appui du mur. J'ai eu une nouvelle étude, il appelle cette forme porteuse à queue de vache J'ai de nouveau comparé sur mon logiciel, cela tombe pas mal en bleu la seconde étude la pièce basse retroussé me permet d'avoir ma hauteur sous plafond identique à l'existant, j'aurais une sablière de 22 mm à fixer avec goujons dans mon chainage B-armé. J'en veux pas mais je vais pas lui demander une 3 étude pour 11 ml de sablière
Après avoir fourni le plan de base, la pente 29.75°, les débords de 22 cm le fournisseur m'a fait une 1 étude Après avoir comparé et étudié cette étude je lui ai fait une proposition d'un modèle après relevé sur l'appui du mur. J'ai eu une nouvelle étude, il appelle cette forme porteuse à queue de vache J'ai de nouveau comparé sur mon logiciel, cela tombe pas mal en bleu la seconde étude la pièce basse retroussé me permet d'avoir ma hauteur sous plafond identique à l'existant, j'aurais une sablière de 22 mm à fixer avec goujons dans mon chainage B-armé. J'en veux pas mais je vais pas lui demander une 3 étude pour 11 ml de sablière
Amateur aimant le bois 
Re: création d'une cuisine en extension sur 4 poteaux
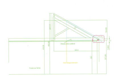
Voici les façades du projet
Amateur aimant le bois 
- Stoneturner
- Découvre le forum
- Messages : 8
- Inscription : 25 nov. 2020, 16:48
- Localisation : Evreux, 27
- Contact :
Re: création d'une cuisine en extension sur 4 poteaux
beau projet ! merci pour le fil 
Re: création d'une cuisine en extension sur 4 poteaux
Bonjour,
Le permis est accordé, à noter: il faut l'avis du service des eaux et territoire d'énergie. Finit les baraquements et tout autre choses.
Le permis est accordé, à noter: il faut l'avis du service des eaux et territoire d'énergie. Finit les baraquements et tout autre choses.
Amateur aimant le bois 
Re: création d'une cuisine en extension sur 4 poteaux
Aujourd'hui j'ai fait une étude perso de la charpente sur la base de la 2 ième option faite par le fournisseur. J'ai fait sur autocad, le calcul est précis grâce à l'hachurage des pièces. Il me restait à faire le volume. Je suis parti sur une base; épaisseur 40 mm soit 0.520 m3
Le fournisseur me demande 715,00 € ttc livré à domicile.
Pas photo, vu le prix du bois au détail + le supplément volume dû aux chutes + les connecteurs
Le fournisseur me demande 715,00 € ttc livré à domicile.
Pas photo, vu le prix du bois au détail + le supplément volume dû aux chutes + les connecteurs
Amateur aimant le bois 
Re: création d'une cuisine en extension sur 4 poteaux
Bonjour,
Le délai de 2 mois est écoulé, pas de nouvelles concernant un recours, je vais donc commencer les travaux par la déviation d'un réseau eau pluviale
Le délai de 2 mois est écoulé, pas de nouvelles concernant un recours, je vais donc commencer les travaux par la déviation d'un réseau eau pluviale
Amateur aimant le bois 
- FlourVonElfic
- Accro
- Messages : 522
- Inscription : 14 mars 2014, 14:05
- Localisation : Toulouse
- Contact :
Re: création d'une cuisine en extension sur 4 poteaux
Tu peux demander à ta mairie un courrier qui confirme qu'il n'y a aucun recours. Ca leur prend 2min, c'est ce que j'avais fait puis stocké dans les papiers "au cas où".
Re: création d'une cuisine en extension sur 4 poteaux
Normalement, celui qui fait recours doit aviser le concerné par courrier. J'ai laissé un délai supplémentaire de 7 jours
Amateur aimant le bois 
Re: création d'une cuisine en extension sur 4 poteaux
J'ai fini la déviation ep
Prévisions: dans 3 semaines je suis au plancher, on verra si le temps est agréable sinon c'est repoussé
Prévisions: dans 3 semaines je suis au plancher, on verra si le temps est agréable sinon c'est repoussé
Amateur aimant le bois 
Re: création d'une cuisine en extension sur 4 poteaux
oui, mais il a 15 j pour le faire :
source :https://www.service-public.fr/particuli ... its/F20567Vous devez informer le titulaire de l'autorisation de votre recours gracieux. Cette notificationFormalité par laquelle un acte de procédure ou une décision est porté à la connaissance d’une personne doit être envoyée par lettre RAR : RAR : Recommandé avec avis de réception dans un délai de 15 jours francsJour qui dure de 0h à 24h. Un délai ainsi calculé ne tient pas compte du jour de la décision à l'origine du délai, ni du jour de l'échéance. Si le délai s'achève un samedi ou un dimanche, il est reporté au lundi. Si le délai s'achève un jour férié, il est reporté d'un jour. Ainsi, par exemple, si un délai s'achève un samedi et le lundi suivant est un jour férié, il est reporté au mardi. à partir du dépôt de votre recours à la mairie. Elle doit comporter la copie du texte intégral du recours. Si vous ne l'envoyez pas, le tribunal administratif ne prendra pas en compte le recours contentieux que vous pourriez déposer par la suite.
@+
Re: création d'une cuisine en extension sur 4 poteaux
Il doit le faire dans le délai de 2 mois. Il n'y a pas 2 mois + 15 joursmeles a écrit : ↑30 août 2024, 20:41oui, mais il a 15 j pour le faire :
source :https://www.service-public.fr/particuli ... its/F20567Vous devez informer le titulaire de l'autorisation de votre recours gracieux. Cette notificationFormalité par laquelle un acte de procédure ou une décision est porté à la connaissance d’une personne doit être envoyée par lettre RAR : RAR : Recommandé avec avis de réception dans un délai de 15 jours francsJour qui dure de 0h à 24h. Un délai ainsi calculé ne tient pas compte du jour de la décision à l'origine du délai, ni du jour de l'échéance. Si le délai s'achève un samedi ou un dimanche, il est reporté au lundi. Si le délai s'achève un jour férié, il est reporté d'un jour. Ainsi, par exemple, si un délai s'achève un samedi et le lundi suivant est un jour férié, il est reporté au mardi. à partir du dépôt de votre recours à la mairie. Elle doit comporter la copie du texte intégral du recours. Si vous ne l'envoyez pas, le tribunal administratif ne prendra pas en compte le recours contentieux que vous pourriez déposer par la suite.
@+
Amateur aimant le bois 
Re: création d'une cuisine en extension sur 4 poteaux
Je vais lundi en mairie déposer le dossier d'ouverture de chantier. Donc à lundi ! 
Amateur aimant le bois 
Re: création d'une cuisine en extension sur 4 poteaux
C'est parti, voici ma première semelle acier poteau. Semelle B.A 80 x 80 cm x 20 cm de haut
Amateur aimant le bois 
Re: création d'une cuisine en extension sur 4 poteaux
Aujourd'hui:
Implantation, terrassement et béton de propreté. 2 massifs Je suis sur de l'argile, je vais pas plus bas car l'eau n'est pas loin. De toutes façons les fondations de la maison sont à ras le sol soit moins 50 cm maxi.
Le béton de propreté sert à maintenir la cohésion du fond de fouille en cas de pluie et sert au traçage des poteaux. Je coule la fondation avec les poteaux en place.
Implantation, terrassement et béton de propreté. 2 massifs Je suis sur de l'argile, je vais pas plus bas car l'eau n'est pas loin. De toutes façons les fondations de la maison sont à ras le sol soit moins 50 cm maxi.
Le béton de propreté sert à maintenir la cohésion du fond de fouille en cas de pluie et sert au traçage des poteaux. Je coule la fondation avec les poteaux en place.
Amateur aimant le bois 
Qui est en ligne ?
Utilisateurs parcourant ce forum : Aucun utilisateur inscrit et 9 invités