Réalisation studio

Exposez vos œuvres

Modérateur : pilpoil

Avatar de l’utilisateur
Eataine
Accro
Messages : 4630
Inscription : 30 avr. 2012, 00:12
Localisation : non peut-être?
Contact :

Réalisation studio

Message par Eataine »

Bon, allez, je me lance puisque vous voulez des sujets, mêmes pas beaux.

Pour les anciens, il y a 3 ans, j'ai acheté un ancien "bar à champagne" pour le transformer en kots pour étudiants (logement étudiants collectifs). Si j'ai du temps, je ferai aussi un sujet là dessus. En gros, en 2 mois d'été, on a quasiment tout refait sauf les murs extérieurs... Et le grenier.

Et ben voilà, cet été je m'attaque au grenier pour en faire un petit studio 2 pièces + sdb pour ma fille et son copain.

Avantage: on part de rien.
Inconvénient: on part de rien.

Il faut créer un escalier, car actuellement c'est une échelle de meunier à laquelle on accède en traversant une des chambres. Pas pratique ;-)

Après avoir longuement réfléchi, et être passé de la solution la plus évidente mais la plus compliquée à la solution moins évidente mais bien plus facile, j'ai tranché dans le vif.

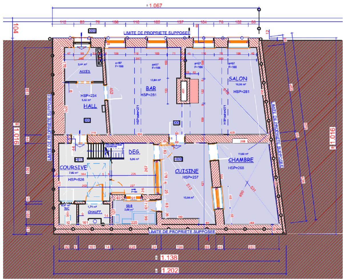
Alors voilà les plans avant rénovation de 2022:
Rez-de-chaussée-initial.jpg
Etage-initial.jpg

Et voilà l'état après la rénovation de 2022:
Plan rez-de-chaussée.jpg
Plan étage.jpg
Pas représenté sur le plan, mais la chambre 5 possède 2 Velux (114x118 et 114x70) et la salle de bain de l'étage un Velux (114x70). Au dessus du hall et du pallier, il y a 2 coupoles de 200x100.
La maison est enclavée entre 3 autres bâtiments, il n'y a donc pas de fenêtres au niveau de la cuisine ni de la salle de bain du bas.

Et donc voilà le projet du studio:
Studio 4.png
Bon, c'est approximatif, les zones vertes représentent les zones où il y a moins de 2m de hauteur sous la toiture, les "murs" jaunes visualisent la "zone libre" au 1er étage par laquelle je vais pouvoir passer mes câbles et conduites.
Avatar de l’utilisateur
Eataine
Accro
Messages : 4630
Inscription : 30 avr. 2012, 00:12
Localisation : non peut-être?
Contact :

Re: Réalisation studio

Message par Eataine »

Alors, l'escalier existant a été déplacé afin de réaliser une plateforme qui va du pallier vers le mur de gauche (en regardant le plan).
Le mur a été ouvert:
IMG_20250705_160425.jpg
Et une passerelle a été construite:
IMG_20250702_200411.jpg
Forcément, l'escalier initial a été déplacé:
IMG_20250702_200359.jpg
IMG_20250702_200413.jpg
Avatar de l’utilisateur
Eataine
Accro
Messages : 4630
Inscription : 30 avr. 2012, 00:12
Localisation : non peut-être?
Contact :

Re: Réalisation studio

Message par Eataine »

Y'avait aussi une "petite" cheminée dnas les jambes...
IMG_20250709_193635.jpg

Ben maintenant elle n'est plus là:
IMG_20250719_174826.jpg
Et comme le plancher existant était "un peu bombé", on va repartir sur de bonnes bases:
IMG_20250712_090441.jpg
Avatar de l’utilisateur
Eataine
Accro
Messages : 4630
Inscription : 30 avr. 2012, 00:12
Localisation : non peut-être?
Contact :

Re: Réalisation studio

Message par Eataine »

Alors, pour l'escalier, j'ai un peu triché... C'est un ami ébéniste qui a fait les plans et l'a réalisé. Je l'ai juste passé à l'huile protectrice tant qu'il était encore dnas son atelier:
b2e3aa7e-8c01-471c-9977-07ce82e75552.jpg
bba03b29-df55-4a1f-a28e-9e3d3f81df3d.jpg
8d06f00f-7e37-4752-9a12-a3842bd05aae.jpg
db665571-b73e-497a-b498-66a65053a0e0.jpg
Le bois, ce sont des panneaux d'hévéa. Moi j'aime bien le rendu. Après, c'est juste un escalier qui sera invisible la plupart du temps.
Avatar de l’utilisateur
pic sur pac
Accro
Messages : 1261
Inscription : 07 déc. 2015, 22:18
Localisation : Haute Normandie près de Vernon (Eure)
Contact :

Re: Réalisation studio

Message par pic sur pac »

Bah voilà un sujet qui va pouvoir comporter plein de truc en bois (ou dérivé) a faire et a présenter. Du dévidoir à PQ à la cuisine aménagée 😁
Cool.
Bon courage pour les travaux et le reportage photos.
Un bon militaire ne se rend à rien ... même à la raison :D
Avatar de l’utilisateur
pic sur pac
Accro
Messages : 1261
Inscription : 07 déc. 2015, 22:18
Localisation : Haute Normandie près de Vernon (Eure)
Contact :

Re: Réalisation studio

Message par pic sur pac »

Eataine a écrit : 23 juil. 2025, 12:39 Alors, pour l'escalier, j'ai un peu triché... C'est un ami ébéniste qui a fait les plans et l'a réalisé. Je l'ai juste passé à l'huile protectrice tant qu'il était encore dans son atelier:
Ah faire un escalier de l'épure à la réalisation j'adore ça.
Un bon militaire ne se rend à rien ... même à la raison :D
Avatar de l’utilisateur
Eataine
Accro
Messages : 4630
Inscription : 30 avr. 2012, 00:12
Localisation : non peut-être?
Contact :

Re: Réalisation studio

Message par Eataine »

pic sur pac a écrit : 23 juil. 2025, 14:18
Eataine a écrit : 23 juil. 2025, 12:39 Alors, pour l'escalier, j'ai un peu triché... C'est un ami ébéniste qui a fait les plans et l'a réalisé. Je l'ai juste passé à l'huile protectrice tant qu'il était encore dans son atelier:
Ah faire un escalier de l'épure à la réalisation j'adore ça.
Y'avait de sacrée contraintes, à la fois en élévation, en emmarchement, en largeur... du coup on est parti sur un quart tournant dans la partie haute qui va dépasser la largeur de la partie droite de l'escalier.

Là, la bestiole fait 130 kg, 80 cm de largeur, et de mur à mur, à l'endroit le plus étroit, on a 81 cm... Va pas falloir se rater.
Avatar de l’utilisateur
Copeau Cabana
Accro
Messages : 6711
Inscription : 13 avr. 2021, 00:04
Localisation : Ici même !
Contact :

Re: Réalisation studio

Message par Copeau Cabana »

J'adore les rénovations comme celle-là !
Je prends mon strapontin. ;)
"If it looks straight, it is straight" (Jimmy Diresta)
Avatar de l’utilisateur
Eataine
Accro
Messages : 4630
Inscription : 30 avr. 2012, 00:12
Localisation : non peut-être?
Contact :

Re: Réalisation studio

Message par Eataine »

Bon là je viens de refermer la trémie au dessus du couloir d'entrée, qu'on avait laissé "en stand by" il y a 3 ans en pensant qu'on pourrait y mettre l'escalier...
Et j'ai oublié de faire des photos, comme la plupart du temps...
Avatar de l’utilisateur
woodpecker54
Accro
Messages : 1899
Inscription : 15 sept. 2016, 16:22
Localisation : Nancy
Contact :

Re: Réalisation studio

Message par woodpecker54 »

Voilà un sujet prometteur :) Je prends aussi un siège et je m'installe à côté de Copeau Cabana
L'ignorance engendre plus souvent la confiance en soi que ne le fait la connaissance - Charles Darwin

Mes dernières réalisations : Un marchepied pour table de massage / Pergola à lames orientables

Intéressé par une visite de mon atelier ?
Avatar de l’utilisateur
Régine
Accro
Messages : 3207
Inscription : 22 mars 2014, 19:01
Localisation : Bandol (83)
Contact :

Re: Réalisation studio

Message par Régine »

Je m'abonne également. :)
La vie est belle alors, carpe diem !
Avatar de l’utilisateur
Eataine
Accro
Messages : 4630
Inscription : 30 avr. 2012, 00:12
Localisation : non peut-être?
Contact :

Re: Réalisation studio

Message par Eataine »

Bon alors voici l'état d'avancement ce week-end:

Tout d'abord le "bouchage" de la travée qu'on avait laissé pensant y faire passer l'escalier, du rez au grenier.
IMG_20250724_161858.jpg
Les tuyaux ont été démontés et repliés car ils étaient dnas le chemin de l'escalier. Je vais devoir les faire passer par le dessous.

Avant d'installer l'escalier, un peu de ménage: les solives sont dans le passage, on va les monter (y'a déjà la moitié qui sont en haut quand j'ai pris la photo). Ce sont les solives qui supporteront le plancher.
IMG_20250725_114004.jpg
J'ai réquisitionné le gamin et le petit copain de ma fille.
IMG_20250725_113413.jpg
IMG_20250725_120855.jpg
IMG_20250725_113519.jpg
IMG_20250725_114909.jpg
Voilà, c'est mieux comme ca.
IMG_20250725_163239.jpg
Avatar de l’utilisateur
Eataine
Accro
Messages : 4630
Inscription : 30 avr. 2012, 00:12
Localisation : non peut-être?
Contact :

Re: Réalisation studio

Message par Eataine »

L'escalier maintenant
IMG_20250725_144225.jpg
IMG_20250725_144241.jpg
IMG_20250725_144251.jpg
Belle bestiole.


Bon, les solives et le plancher n'étant pas terminées lorsqu'on a posé l'escalier, on a posé une solive "à peu près" à sa place définitive.
IMG_20250725_142654.jpg
IMG_20250725_142948.jpg
Au passage vous remarquerez l'élégance de l'ébéniste et de son chapeau de paille.
Avatar de l’utilisateur
Eataine
Accro
Messages : 4630
Inscription : 30 avr. 2012, 00:12
Localisation : non peut-être?
Contact :

Re: Réalisation studio

Message par Eataine »

Alors on a d'abord monté la partie quart tournant au grenier, mais le photographe (bibi) a du prêter main forte, donc pas de photos.

Ensuite, on a monté la partie droite et on l'a avancée plus loin que sa place définitive afin de pouvoir ensuite y fixer le quart tournant. Là encore pas de photos du levage de la bête.
IMG_20250725_145538.jpg
Un bout de chevron qui gène le passage, à couper.
IMG_20250725_154401.jpg
Fixation du quart tournant
IMG_20250725_150846.jpg
IMG_20250725_150658.jpg
Ensuite, il a fallu reculler l'escalier assemblé pour le mettre à sa place définitive (là encore, pas de photos car j'étais occupé).

La bête en place
IMG_20250725_174654.jpg
Les contrôleurs qualité à l'ouvrage...
IMG_20250725_162453.jpg
Dernière modification par Eataine le 27 juil. 2025, 00:32, modifié 1 fois.
Avatar de l’utilisateur
Eataine
Accro
Messages : 4630
Inscription : 30 avr. 2012, 00:12
Localisation : non peut-être?
Contact :

Re: Réalisation studio

Message par Eataine »

La mauvaise nouvelle du jour: Le charpentier, qui à la base aurait du terminer les travaux de toiture et d'isolation cette semaine (mais qui n'a pas encore commencé because son associé est en congé du 12 au 27 juillet), ne commencera pas avant le 4 août, because son associé ne rentrera finalement de vacance que le 3 août.

Et comme moi je reprend le boulot le 25 août, ça va pas être facile d'avoir terminé pour la rentrée académique du 15 septembre.
Avatar de l’utilisateur
Copeau Cabana
Accro
Messages : 6711
Inscription : 13 avr. 2021, 00:04
Localisation : Ici même !
Contact :

Re: Réalisation studio

Message par Copeau Cabana »

Ne nous dis pas que tu vas mettre ce beau chantier en suspens ! :o
On veut la suite ! :P
"If it looks straight, it is straight" (Jimmy Diresta)
Avatar de l’utilisateur
Eataine
Accro
Messages : 4630
Inscription : 30 avr. 2012, 00:12
Localisation : non peut-être?
Contact :

Re: Réalisation studio

Message par Eataine »

Non, je vais continuer à poser les solives avec les gamins. On posera ensuite le plancher OSB. Sinon je dois modifier le passage des arrivées et évacuations d'eau de la salle de bain qui se situe au premier, derrière la paroi qu'on voit là. Et également préparer le passage des arrivées et évacuations d'eau du futur studio.
Je vais peut être aussi précabler mon tableau électrique, pour n'avoir plus qu'à raccorder les circuits à la fin.

Une semaine ça passera encore assez vite.

Puis il me restera les week-end pour
- peindre les murs
- raccorder l'électricité
- raccorder la plomberie
- poser le parquet stratifié
- carreler la douche
- poser la cuisine
- poser les menuiseries intérieures

Avec un peu de chance, ils pourront emménager fin octobre.
Avatar de l’utilisateur
Eataine
Accro
Messages : 4630
Inscription : 30 avr. 2012, 00:12
Localisation : non peut-être?
Contact :

Re: Réalisation studio

Message par Eataine »

Solivage presque fini, reste à chaîner tout ça.
IMG_20250731_153431.jpg
IMG_20250731_153436.jpg
Avatar de l’utilisateur
domi49
Accro
Messages : 1548
Inscription : 16 janv. 2014, 22:29
Localisation : Angers
Contact :

Re: Réalisation studio

Message par domi49 »

Eataine a écrit : 01 août 2025, 15:18 Solivage presque fini, reste à chaîner tout ça.
Je ne voudrais pas paraître désagréable, mais tu vas avoir de gros soucis de solives qui bougent, car tu as utilisé du bois vert :twisted:
Qui rigole au traçage, pleure à l'assemblage.
Mes réalisations en bois
Avatar de l’utilisateur
Eataine
Accro
Messages : 4630
Inscription : 30 avr. 2012, 00:12
Localisation : non peut-être?
Contact :

Re: Réalisation studio

Message par Eataine »

domi49 a écrit : 01 août 2025, 19:51
Eataine a écrit : 01 août 2025, 15:18 Solivage presque fini, reste à chaîner tout ça.
Je ne voudrais pas paraître désagréable, mais tu vas avoir de gros soucis de solives qui bougent, car tu as utilisé du bois vert :twisted:
C'est fait exprès: depuis 3 ans la maison n'arrête pas d'évoluer. J'espère pouvoir ajouter un étage d'ici une vingtaine d'années...


... le temps que le bois ait poussé un peu plus
Répondre

Qui est en ligne ?

Utilisateurs parcourant ce forum : Aucun utilisateur inscrit et 10 invités